Diamond Court, Wykoff MN
Welcome to Mundfrom First our new residential development. Located on the north end of Wykoff, adjacent to the Wykoff Commons. This new subdivision will offer eight twin homes and five single family detached homes.
Construction on the first twin home has started with a projection completion date of June 2025.
Diamond Court
Mundfrom First Subdivision
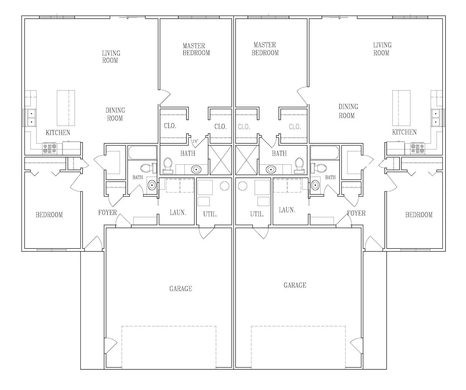
Twin Home Unit
2 Bed | 2 Bath | 2 Car Garage
Each unit will offer in-floor heat, zero entry access. Custom cabinets, kitchen island, in floor heat, LVP flooring and primary bedroom walk in tile shower. Two car heated garage.
Location
407 Line St N, Wykoff, MN 55990Office Address
124 N Broadway Ave, Spring Valley, MN 55975
Phone
507.251.2198

